YWK-58型防爆压力控制器(压力开关)
防爆标志 Ex dbⅡC T4~ T6 Gb
YWK-58防水型防爆压力控制器(压力开关)外壳防护等级IP66,可用于户外安装,防腐等环境。设定值范围广泛调节范围可达 -0.1-40MPa
YWK-58型防爆压力控制器主要技术指标
可用于腐蚀性介质,也可用于空气、气体、水、液压油、润滑油、轻燃油等
工作粘度:< 10 × 10-3m2/s |
防爆等级:Ex dbⅡC T4~T6 GB/T |
外壳防护等级:IP66 |
环境温度:-20~55℃ |
介质温度:0~120℃ |
接口方向:压力接口垂直向下 |
抗振性能:Max:20m/s2 |
重复性误差:-0.1~6.3≤1.5%,4~40≤2.5% |
触点容量DC 250V 0.25A(阻性)60Wmax |
AC 250V 5A(阻性)1250Wmax |
YWK-58型防爆压力控制器规格
·YWK-58-A
设定值调节范围MPa | 切换差不大于 | *大 允许 压力*MPa | 开关 切换 次数 次/分 | 压力传感器材料 | 接口 外螺纹 | 重量kg | 外形尺 寸图号 | 订货目录 编号 | ||
设定值范围下限MPa | 设定值范围上限MPa | 外壳 | 波纹管 | |||||||
-0.1……0 -0.1……0.1 -0.1……0.16 -0.10……0.25 | 0.006 0.007 0.008 0.009 | 0.007 0.008 0.009 0.012 | 1 | 20 | 304 | 316L | G1/2” | 2.0 | 01 | 1850181 1850281 1850381 1850481 |
0……0.1 0……0.16 0……0.25 | 0.007 0.008 0.009 | 0.008 0.009 0.01 | 1 | 1851181 1851281 1851381 | ||||||
0.02……0.4 0.03……0.6 0.05……1 | 0.03 0.03 0.03 | 0.03 0.035 0.04 | 2 | 1851481 1851581 1851681 | ||||||
0.05……1.6 0.05……2.5 | 0.07 0.07 | 0.08 0.09 | 5 | 1851781 1851881 | ||||||
0.3……6.3 | 0.1 | 0.2 | 8.5 | 1851981 | ||||||
·YWK-58-B
设定值调节范围MPa | 切换差不大于 | *大 允许 压力*MPa | 开关 切换 次数 次/分 | 压力传感器材料 | 接口 内螺纹 | 重量kg | 外形尺 寸图号 | 订货目录 编号 | ||
设定值范围下限MPa | 设定值范围上限MPa | 外壳 | 膜片 | |||||||
0.02……0.4 | 0.03 | 0.03 | 4 | 20 | 304 | 316L | 2.0 | 02 | ||
0.05……1.6 | 0.1 | 0.2 | 16 | G1/4 | 1857181 | |||||
0.2……4 0.3……6 | 0.3 0.4 | 0.4 0.6 | 16 | G1/4” G1/4 | 1857281 1857381 | |||||
0.5……10 0.5……16 | 0.5 0.6 | 1.0 1.6 | 30 | G1/4” G1/4” | 1857481 1857581 | |||||
1……25 1……40 | 0.8 0.9 | 2.5 4.0 | 60 | G1/2” G1/2” | 1857681 1857781 | |||||
YWK-58型防爆压力控制器设定值的调整
1、不可调切换差的控制器设定值调整步骤。举例说明如下:
图一
例:选用订货号为1851681的控制器,要求将压力上升至0.5MPa(上切换值)发出触点信号,其操作步骤参见1.1~1.5。(如图一所示)
1.1将产品旋入压力校验台的螺纹接口上,注意须***用扳手夹持传感器的平面部分,**防止开关壳体与传感器发生相对转动。
1.2 打开盖子,将电缆穿过电缆接口接入端子板中,电缆另一头接上万用表。
1.3 将压力加至0.5MPa,此值可以从标准压力计中读出。
1.4 逆时针旋动设定值调节螺杆,使设定值由大变小,直至开关触点在0.5MPa处切换。
1.5 旋紧锁紧螺钉,调节压力校验台的压力,使压力在0.5MPa上下来回变化,检验压力上升时,触点的切换值是否是0.5MPa,此值即为要设定的上切换值。其对应的下切换值应是0.5MPa减去切换差0.02MPa(左右),即为0.48MPa(左右)。
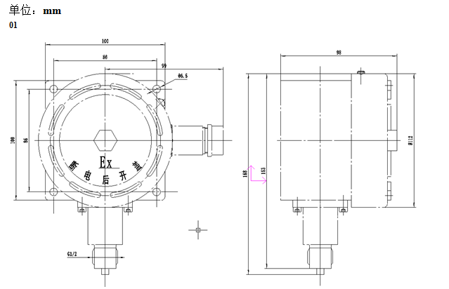
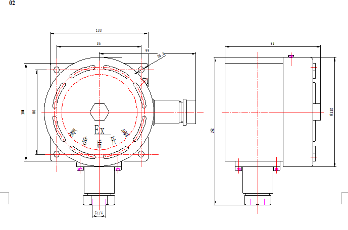
YWK-58型防爆压力控制器外形及安装尺寸
01

02




